Alicante, Ciudad Quesada
Nybygget villa i Rojales – moderne design og førsteklasses beliggenhet…
1,050,000€
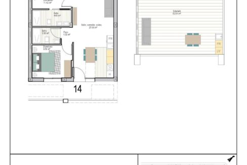
Moderne nybyggede leiligheter i San Cayetano, Torrepacheco, Murcia Moderne livsstil i fredelige middelhavsomgivelser Dette eksklusive nye boligkomplekset ligger i San Cayetano, Murcia, en del av kommunen Torre Pacheco, bare 9 km fra sjøen og omgitt av flere kjente golfbaner. Prosjektet kombinerer ro, komfort og moderne design, og tilbyr et ideelt miljø for permanent opphold, ferie eller investering på Costa Calida. Utbyggingen består av 72 leiligheter med 2 og 3 soverom og 2 bad, hvorav ett er eget bad, fordelt på fire moderne bygninger. En andre fase med bungalower og villaer er også planlagt, noe som vil øke verdien og attraktiviteten til området ytterligere. Designede fellesarealer for avslapning og velvære Beboerne vil kunne nyte nøye anlagte fellesarealer som inkluderer to svømmebassenger, vakre hager og et fullt utstyrt treningsstudio. Disse områdene skaper et hyggelig og sosialt miljø hvor naboene kan slappe av, trene og nyte den middelhavske livsstilen. Boligkomplekset har også 40 kW solcellepaneler som bidrar til å dekke strømkostnadene i fellesskapet, og dermed til et mer bærekraftig og energieffektivt bomiljø. Leiligheter med private uteområder og solarium Hver leilighet er designet for å få mest mulig ut av livet utendørs. Leilighetene i første etasje har private hager, leilighetene i andre etasje har romslige terrasser, og leilighetene i øverste etasje har både terrasse og privat solarium på taket. Alle leilighetene har sommerkjøkken på terrassen eller solariet, perfekt for å nyte solen hele året. Alle boliger har en utendørs parkeringsplass og et privat bod i kjelleren, noe som gir ekstra bekvemmelighet og praktiskhet. Kvalitetsfunksjoner og energieffektive installasjoner Disse nybygde leilighetene leveres med kvalitetsfinish og moderne installasjoner for å sikre komfort og funksjonalitet, inkludert: Fullt utstyrt kjøkken med hvitevarer Fullt utstyrte bad med møbler, speil, belysning og dusjvegger Forhåndsinstallasjon for kanalisert klimaanlegg Aerotermisk system for varmt vann Kombinasjonen av moderne materialer og energieffektive systemer gjør disse boligene ideelle for bruk hele året. Utmerket beliggenhet nær golf, strender og tjenester San Cayetano er en rolig og godt tilknyttet landsby med lokale fasiliteter, butikker og tjenester. Den strategiske beliggenheten gir enkel tilgang til strender, golfbaner og viktige transportforbindelser. Viktige avstander til interessante steder inkluderer: Mar Menor-strendene 9 km Roda Golf 6 km La Serena Golf 14 km Los Alcazares 10 km Cartagena 30 km Murcia Corvera flyplass 25 km Alicante flyplass 90 km Sikre deg din eiendom i San Cayetano i dag Dette moderne boligkomplekset tilbyr en utmerket mulighet til å nyte middelhavslivet i et fredelig, men likevel godt tilknyttet område. Kontakt oss i dag for mer informasjon og reserver din nye leilighet i San Cayetano.
Nybygget villa i Rojales – moderne design og førsteklasses beliggenhet…
1,050,000€
Nye middelhavsleiligheter bare 140 meter fra stranden i Torre de…
275,900€
Nytt boligprosjekt i San Miguel de Salinas, et steinkast fra…
244,000€
Murcia, Torre Pacheco
Owning a home is a keystone of wealth… both financial affluence and emotional security.
Suze Orman