Alicante, Orihuela
Moderne villaer med privat basseng i Vistabella Golf Resort, Orihuela…
384,900€
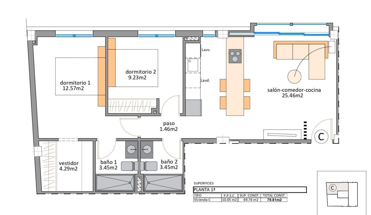
Nybyggede leiligheter til salgs i Lo Pagan (San Pedro del Pinatar) nær stranden Moderne middelhavsstil i Lo Pagan Oppdag disse stilige nybyggede leilighetene til salgs i Lo Pagan, et sjarmerende kystområde i San Pedro del Pinatar på den vakre Costa Calida. Dette boligprosjektet ligger i det velkjente nabolaget Los Cuarteros og tilbyr en privilegert livsstil bare 500 meter fra stranden og i nærheten av alle nødvendige tjenester, restauranter, butikker og fritidsområder. Lo Pagan er kjent for sin avslappede atmosfære ved sjøen, det rolige vannet i Mar Menor og mer enn 300 soldager hvert år. Området kombinerer tradisjonell spansk sjarm med moderne fasiliteter, noe som gjør det til et ideelt reisemål både for permanent opphold og ferieboliger. Moderne leiligheter med terrasser og private solterrasser Utbyggingen tilbyr et utvalg av leiligheter i første og andre etasje med romslige terrasser, samt eksklusive penthouse-leiligheter med private solterrasser på taket. Solterrassene har pergola og grillområde, noe som skaper den perfekte rammen for å spise ute og slappe av under middelhavssolen. Hver eiendom er designet for å kombinere moderne arkitektur med varm middelhavsstil. Det åpne kjøkkenet integreres sømløst med stue og spisestue, og skaper lyse og komfortable oppholdsrom. Store terrasser utvider innendørsarealene og gir det perfekte stedet for frokost eller kveldssamlinger utendørs. Soverommene har innebygde garderober, og de moderne badene er fullt utstyrte, noe som gir komfort og elegant finish i hele hjemmet. Kvalitetsfunksjoner og fellesfasiliteter Disse boligene er bygget med sans for detaljer og har høykvalitets spesifikasjoner for å sikre komfort og effektivitet. Fullt møblert kjøkken utstyrt med hvitevarer Fullt utstyrte bad med moderne finish Fullt installert klimaanlegg Privat parkeringsplass og bod inkludert i hver bolig Beboerne kan også nyte gode fellesfasiliteter, inkludert et svømmebasseng omgitt av avslapningsområder og et fullt utstyrt treningsstudio, ideelt for å opprettholde en aktiv livsstil hele året. Utmerket beliggenhet på Costa Calida Dette boligprosjektet har en strategisk beliggenhet nær strender, golfbaner og viktige destinasjoner langs kysten. Playa de Villananitos 0,5 km Real Club Nautico de Lo Pagan 0,5 km Lo Romero Golf 10 km Murcia internasjonale lufthavn 40 km Cartagena 35 km De nærliggende strendene i Mar Menor, som Playa de La Puntica, er kjent for sin fine sand og rolige vann, ideelt for svømming, seiling og vannsport. Ditt nye hjem ved sjøen venter Nyt sol, strender og et livlig kystliv i et av de mest ettertraktede områdene på Costa Calida. Kontakt oss i dag for mer informasjon om disse nybygde leilighetene i Lo Pagan og sikre deg din plass ved sjøen.
Moderne villaer med privat basseng i Vistabella Golf Resort, Orihuela…
384,900€
Nøkkelferdige leiligheter til salgs i Lomas de Campoamor, Orihuela Costa…
238,000€
Nybyggede leiligheter og villaer med utsikt mot golfbanen i La…
379,000€
Murcia, San Pedro del Pinatar
Owning a home is a keystone of wealth… both financial affluence and emotional security.
Suze Orman