Murcia, Torre Pacheco
Moderne nybyggede leiligheter i San Cayetano, Torrepacheco, Murcia Moderne livsstil…
249,900€
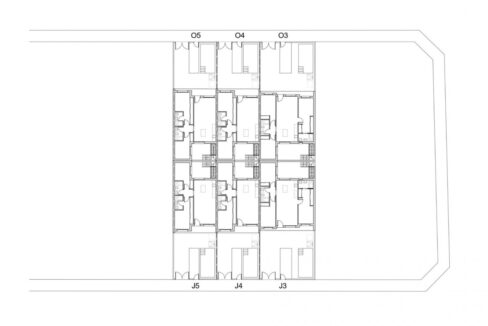
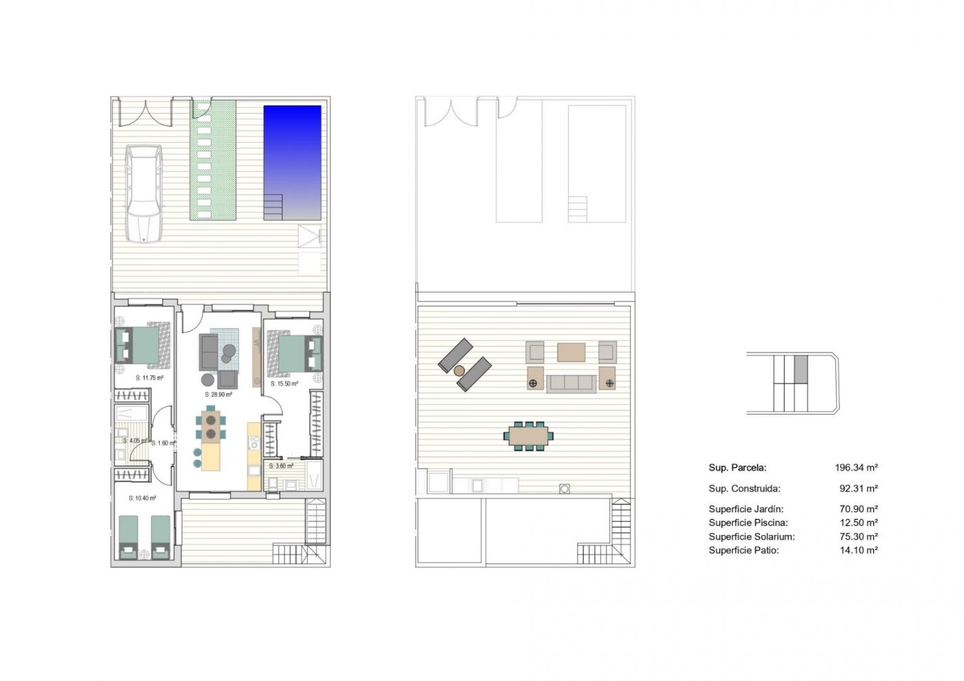
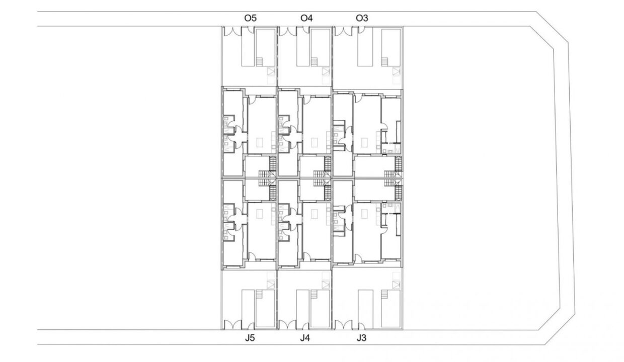
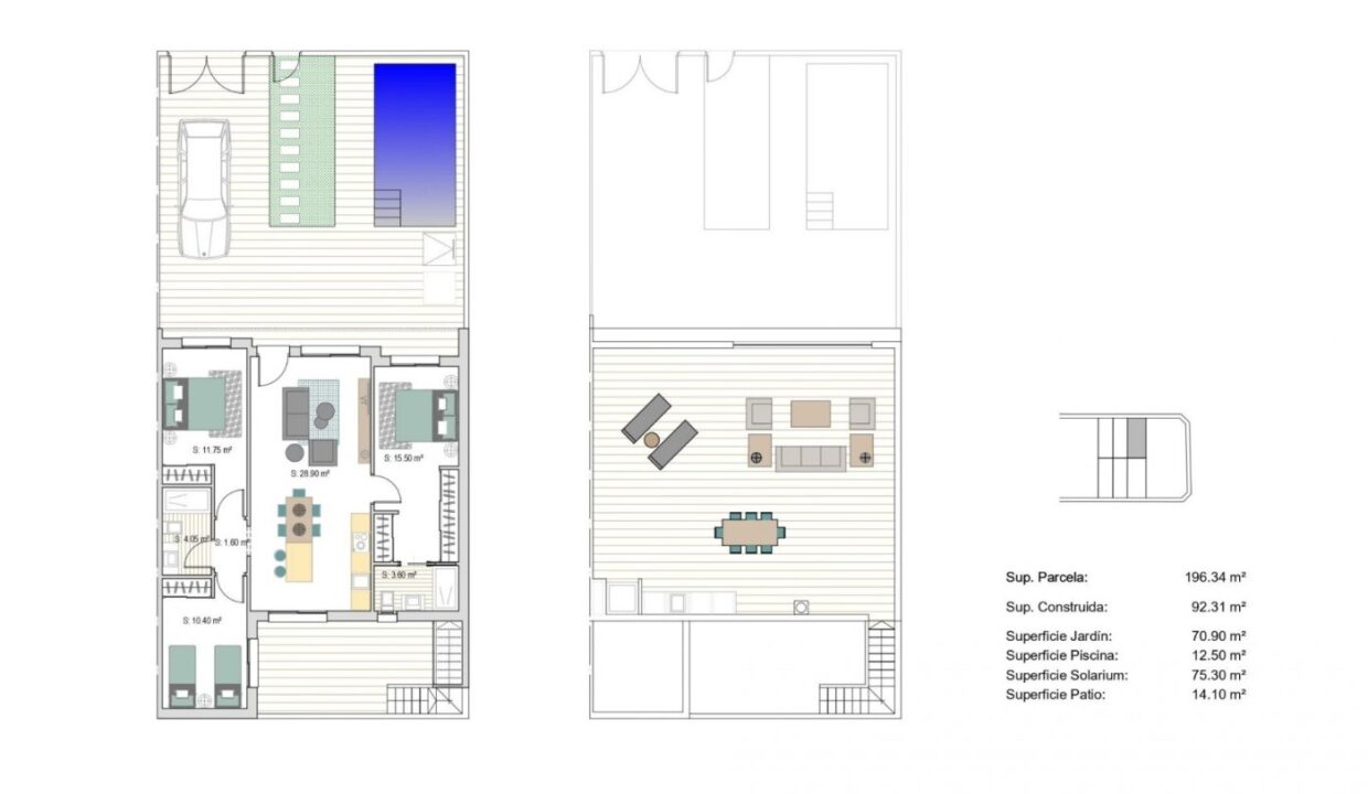
Nybyggede turistleiligheter i Santiago de la Ribera, San Javier – bare 750 meter fra stranden Eksklusivt boligprosjekt på Costa Cálida Dette eksklusive boligkomplekset med 125 turistleiligheter ligger i Santiago de la Ribera (San Javier), en sjarmerende kystby på Costa Cálida, kjent for sine vakre sandstrender, avslappede middelhavsstil og utmerkede klima året rundt. Med Mar Menor bare 750 meter unna, tilbyr disse boligene den perfekte kombinasjonen av komfort, stil og nærhet til sjøen. Moderne leiligheter med flere alternativer Utbyggingen tilbyr romslige leiligheter med 3 soverom og 2 bad, inkludert et hovedsoverom med eget bad. Kjøpere kan velge mellom: Leiligheter i første etasje med privat hage Leiligheter i mellomste etasje med store terrasser Penthouseleiligheter med privat solarium Hver bolig er designet for å maksimere naturlig lys og utendørs liv. Funksjonene inkluderer fullt utstyrt og møblert kjøkken med hvitevarer, innvendig og utvendig belysning, bad med møbler og dusjvegger. Hver bolig har en parkeringsplass på overflaten, mens underjordisk parkering og bod er tilgjengelig mot en ekstra kostnad. Førsteklasses fasiliteter og tjenester Eierne vil kunne nyte godt av en moderne bygning utstyrt med heiser, to felles svømmebassenger og vakre hager. Boligene har forhåndsinstallert kanalisert klimaanlegg for komfort hele året. En smart investeringsmulighet Disse leilighetene har allerede fått turistlisens, noe som gjør dem til en utmerket investering for ferieutleie. Eierne kan generere inntekter gjennom korttidsutleie, samtidig som de kan nyte eiendommen til egne familieferier. Vær oppmerksom på at disse boligene er ment for feriebruk og ikke kan brukes som permanente boliger. Førsteklasses beliggenhet i San Javier Utbyggingen er strategisk plassert i nærheten av alle viktige tjenester og fritidsaktiviteter. Avstander til viktige severdigheter: Mar Menor-stranden: 750 m La Ribera kjøpesenter: 2 km Dos Mares kjøpesenter: 3 km Roda Golf: 5 km Lo Pagán marina: 4 km Murcia lufthavn (Corvera): 40 km Cartagena: 30 km Murcia by: 40 km Gjør din drøm om å bo ved kysten til virkelighet Dette nybyggprosjektet i Santiago de la Ribera representerer en unik mulighet til å nyte middelhavslivet samtidig som du gjør en smart investering i utleie. Kontakt oss i dag for mer informasjon eller for å avtale en visning av disse moderne turistleilighetene, bare noen skritt fra Mar Menor.
Moderne nybyggede leiligheter i San Cayetano, Torrepacheco, Murcia Moderne livsstil…
249,900€
Nybygde leiligheter i Torrevieja, bare 600 meter fra Playa del…
129,500€
Luksuriøse nybyggede villaer ved stranden i Puerto de Mazarrón Eksklusivt…
995,000€
Alicante, San Miguel de Salinas
Owning a home is a keystone of wealth… both financial affluence and emotional security.
Suze Orman