Description
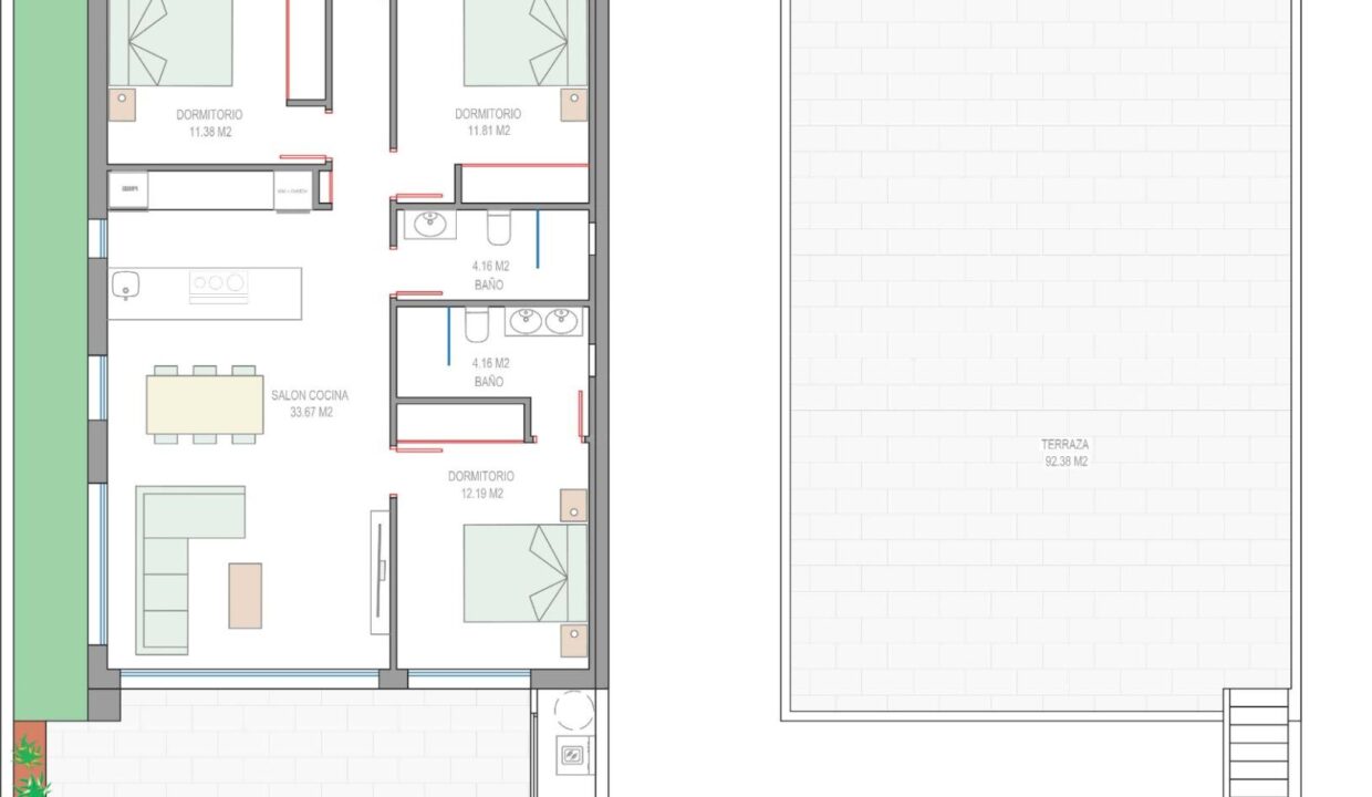
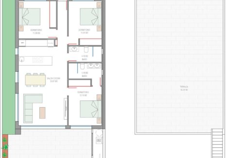
Nybyggede villaer nær Serena Golf i Los Alcazares Moderne villaer i en førsteklasses beliggenhet ved kysten og golfbanen Dette eksklusive nybyggprosjektet tilbyr moderne villaer i Los Alcazares, like ved den prestisjetunge Serena Golf og bare 1,2 km fra sandstrendene ved Mar Menor. Disse boligene ligger i et av de mest attraktive områdene i Murcia-regionen og kombinerer moderne design, komfort og en utmerket beliggenhet nær sjøen, golfbanen og alle daglige tjenester. Los Alcazares er en veletablert kystby kjent for sin avslappede livsstil, lange promenade, vannsport og milde klima gjennom hele året. Enetasjes design med private uteområder Utbyggingen består av stilige villaer med 3 soverom og 2 bad, tilgjengelig i to forskjellige størrelser på henholdsvis ca. 106 kvm og 130 kvm. Den største modellen har også et ekstra gjestetoalett. Alle villaene er designet i én etasje, noe som gir praktisk og komfortabel boform. Det åpne kjøkkenet, spisestuen og stuen har direkte tilgang til en terrasse og privat hage med svømmebasseng, noe som skaper et ideelt rom for innendørs og utendørs opphold. Hver eiendom har også et privat solarium og parkering på tomten. Høy kvalitet og moderne utstyr Disse villaene er bygget med materialer av høy kvalitet og utstyrt med moderne funksjoner. De fullt utstyrte kjøkkenene er tilgjengelige i hvit høyglans eller trefinish og inkluderer benkeplater i kvarts, vask i rustfritt stål, induksjonstopp med integrert avtrekk, stekeovn, mikrobølgeovn, vaskemaskin, integrert kjøleskap og oppvaskmaskin. Badene er utstyrt med møbler, speil, belysning og elektriske håndklestørkere. Ytterligere funksjoner inkluderer elektriske persienner i soverommene, LED-belysning i hele eiendommen og et komplett kanalisert klimaanlegg fra Fujitsu. Privat basseng og energieffektiv komfort Hver villa har et privat svømmebasseng med blå keramiske fliser, integrerte trappetrinn og hvit LED-belysning. Bassenget er forberedt for installasjon av varmepumpe. Kombinasjonen av effektiv klimakontroll, moderne konstruksjon og gjennomtenkt design sikrer komfort hele året. Utmerket tilknytning og viktige avstander Villaene ligger i gangavstand fra sentrum av Los Alcazares og svært nær Serena Golf. Stranden ligger omtrent 1,2 km unna. Byen Cartagena ligger rundt 20 km unna og tilbyr et rikt kulturelt og gastronomisk miljø. Murcia Corvera internasjonale lufthavn ligger omtrent 22 km unna, og Alicante lufthavn ligger omtrent 90 km unna. Flere golfbaner og marinaer ligger også i nærheten, noe som gjør dette stedet ideelt både for permanent opphold og ferier. Ditt ideelle hjem ved sjøen og golfbanen Hvis du er på utkikk etter en moderne nybygget villa nær stranden og golfbanen i Los Alcazares, kan du kontakte oss i dag for mer informasjon eller for å avtale en privat visning.
Tilleggsinformasjon
- Energimerking: B
Lignende boliger
Alicante, Benijofar
Nybyggede leiligheter i Benijofar med sentral beliggenhet Moderne boligliv i…
Nye Boliger
285,000€
Alicante, Torrevieja
NYBYGG GEDED URBANISERING I TORREVIEJA KUN 700M FRA STRANDEN Nybygget…
Nye Boliger
290,000€











































































