Alicante, Los Montesinos
Moderne, nybygde villaer i La Herrada Los Montesinos med privat…
460,000€
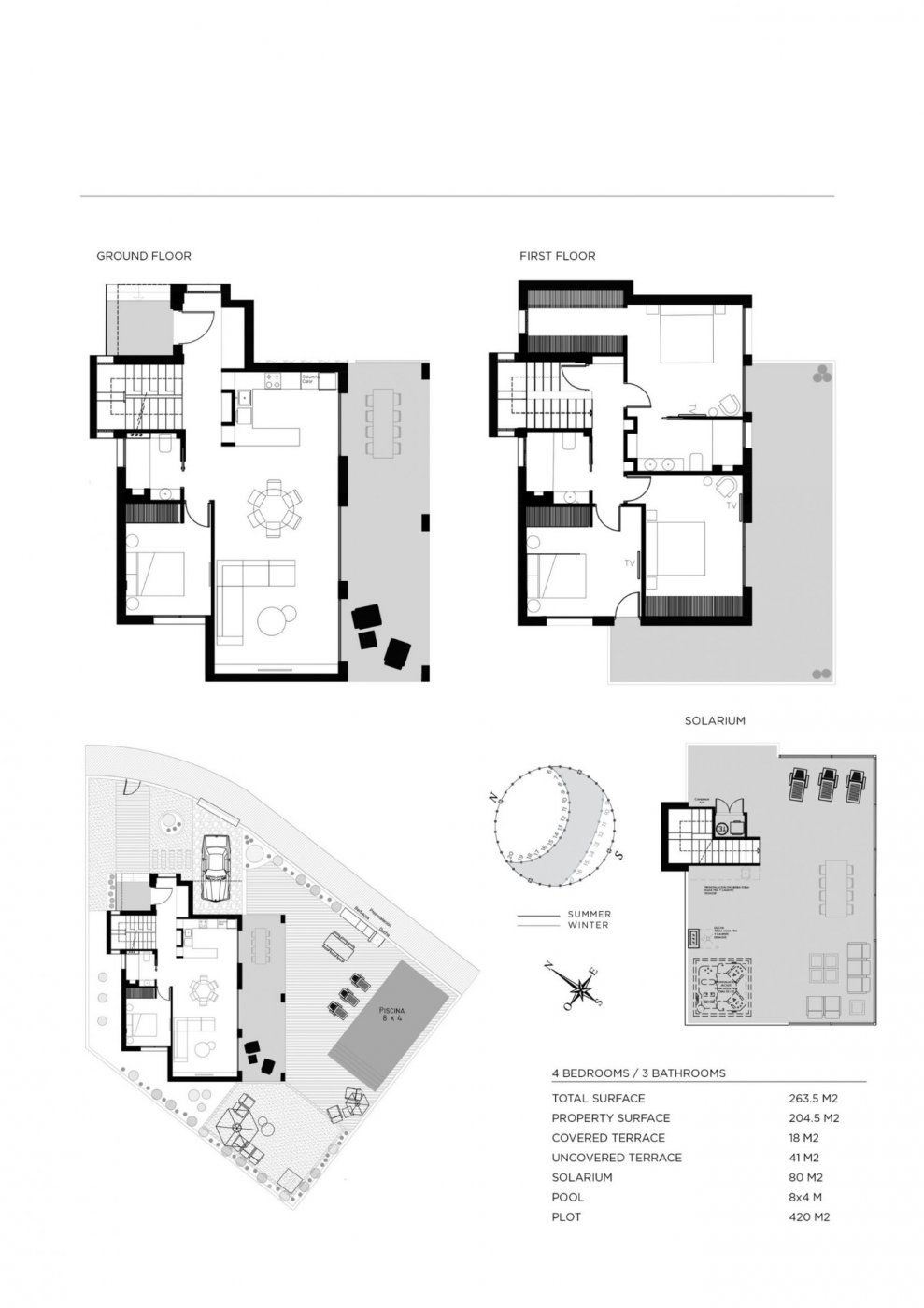
NYBYGG MODERNE VILLA I CIUDAD QUESADA Moderne stil nydelig villa med privat hage og solarium i urbanisasjonen Doña Pepa – Ciudad Quesada. Villaen har stue/spisestue med åpen kjøkkenløsning, 4 soverom og 3 bad, solarium, privat hage, svømmebasseng og parkeringsplass. Med alle nødvendige tjenester for hånden: supermarkeder, golfbaner, restauranter, helsesentre. Ciudad Quesada har utviklet seg raskt i løpet av de siste to tiårene, med et bredt spekter av eiendommer som dekker alle behov og budsjetter, inkludert frittstående villaer, mindre gated community, bungalower og leiligheter. Fasilitetene som er tilgjengelige i Quesada har også forbedret seg over tid, så det er nå hjem til et bredt utvalg av barer, restauranter, butikker og supermarkeder, sammen med flere banker, tannklinikker, apotek, frisørsalonger, kiosker, tobakksbutikker og en ny Medisinsk senter som ligger i Doña Pepa urbanisasjonen. Kun 10 minutter fra de beste strendene på Costa Blanca og 30 minutter fra Alicante internasjonale flyplass.
Moderne, nybygde villaer i La Herrada Los Montesinos med privat…
460,000€
NYBYGG BOLIG I LOS BALCONES, TORREVIEJA Nybygget boligkompleks med tomannsboliger…
330,000€
Nybyggede leiligheter i Torrevieja Bare 600 m fra Playa del…
279,000€
Alicante, Torrevieja
Owning a home is a keystone of wealth… both financial affluence and emotional security.
Suze Orman