Murcia, Torre Pacheco
NYBYGDE VILLAER I PRIVAT INNGJERDET FERIESTED I PROVINSEN MURCIA Nybygde…
1,095,000€
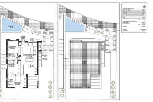
NYBYGDE VILLAER I PINAR DE CAMPOVERDE Moderne boligområde med nybygde villaer i Pinar de Campoverde. Liten utvikling av bare 5 villaer, bygget i en etasje med en fordeling på 3 soverom og 2 bad, åpen stue og spisestue, fullt utstyrt kjøkken, med sentral øy og utsikt til det private svømmebassenget, på uavhengige tomter som starter på 300,00 m2. Det er også et stort solarium for å nyte solen og den vakre utsikten hele året. Villaene har en privilegert beliggenhet ved siden av naturreservatet Rio Seco og i nærheten av fasiliteter, idrettsanlegg og den nærliggende golfbanen Lo Romero, den spanske byen Pilar de la Horadada og bare 15 minutters kjøring til de hvite sandstrendene i La Torre De la Horadada. Det perfekte stedet for deg som ønsker å bo i rolige omgivelser, omgitt av natur og i nærheten av alle fasiliteter, golf og vakre strender.
NYBYGDE VILLAER I PRIVAT INNGJERDET FERIESTED I PROVINSEN MURCIA Nybygde…
1,095,000€
Moderne rekkehus og tomannsboliger i Pilar de la Horadada Oppdag…
354,900€
Moderne nybyggede leiligheter i La Hoya, Torrevieja Moderne boliger med…
345,000€
Alicante, Los Montesinos
Owning a home is a keystone of wealth… both financial affluence and emotional security.
Suze Orman