Murcia, San Pedro del Pinatar
NYBYGDE BOLIGKOMPLEKSER I SAN PEDRO DEL PINATAR Nybygget boligkompleks med…
299,000€
Renovert boligkompleks i Lomas de Cabo Roig - Renoverte leiligheter Leiligheter med førsteklasses beliggenhet Oppdag denne eksklusive muligheten til å eie en renovert leilighet i Lomas de Cabo Roig, et ettertraktet område i Orihuela Costa. Dette boligkomplekset, som opprinnelig ble bygget i 2008, gjennomgår en renovering av noen enheter og vil bli levert i juni 2025. Et visningshus er tilgjengelig for visning, slik at du kan se kvalitetsfinishen med egne øyne. Eiendomsalternativer som passer alle behov Dette prosjektet tilbyr 27 renoverte leiligheter med ulike planløsninger: Leiligheter med 1 og 2 soverom, ideelle som ferieboliger eller investeringsobjekter. Leiligheter i første etasje med private hager, perfekt for utendørs opphold. Leiligheter i mellometasjen med romslige terrasser, ideelle for å nyte middelhavsklimaet. Toppleiligheter med private solarier, med åpen utsikt og maksimal privatliv. Alle leilighetene leveres med dusjvegger på badene og fullt utstyrt kjøkken med hvitevarer, slik at kjøperne får en nøkkelferdig løsning. Eksklusive fellesfasiliteter Boligkomplekset er designet for komfort og avslapning, med blant annet Et felles svømmebasseng omgitt av et vakkert hageanlegg. Heis for enkel tilgang til alle etasjer. Underjordiske parkeringsplasser er tilgjengelig mot en ekstra kostnad. En uslåelig beliggenhet i Orihuela Costa Lomas de Cabo Roig er et prestisjefylt boligområde som ligger bare 2 km fra kystlinjen i Cabo Roig, hjem til noen av de vakreste strendene i Orihuela Costa. Området har gode veiforbindelser og tilbyr et bredt utvalg av tjenester, inkludert butikker, restauranter, supermarkeder og kjøpesentre. Avstander til viktige severdigheter: Strendene i Cabo Roig og Campoamor - 5 minutters kjøring. Kjøpesenteret Zenia Boulevard - 5 km. Villamartín golfbane - 4 km. Alicante lufthavn - 30 minutter med bil. Murcia-Corvera lufthavn - 1 time med bil. En smart investering på Costa Blanca Med sin utmerkede beliggenhet, totalrenoverte leiligheter og førsteklasses fasiliteter er dette prosjektet en ideell mulighet for investering, ferieopphold eller permanent opphold. Ikke gå glipp av denne unike sjansen til å eie et hjem i et av de mest ettertraktede områdene på Costa Blanca til en uslåelig pris. Kontakt oss i dag for mer informasjon eller for å avtale et besøk!
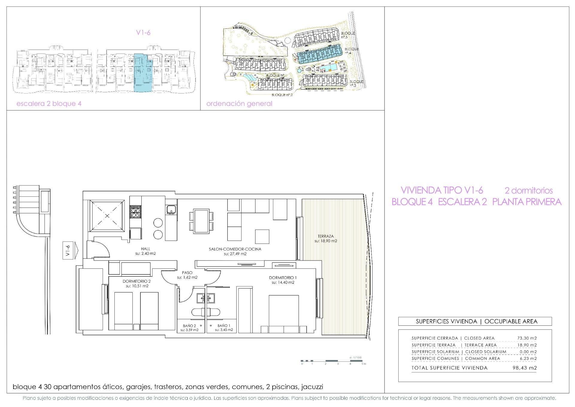
NYBYGDE BOLIGKOMPLEKSER I SAN PEDRO DEL PINATAR Nybygget boligkompleks med…
299,000€
Nybyggede penthouse-leiligheter i Guardamar del Segura med privat solarium Moderne…
339,500€
NYBYGDE BOLIGER I FØRSTE LINJE I SAN PEDRO DEL PINATAR…
810,000€
Alicante, Ciudad Quesada
Owning a home is a keystone of wealth… both financial affluence and emotional security.
Suze Orman