Alicante, Benijofar
Nybygde luksusvillaer med tomannsbolig i Benijófar, Costa Blanca Førsteklasses beliggenhet…
449,000€
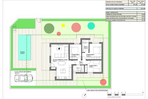
Nybyggede villaer i La Montañosa Urbanization, Hondón de las Nieves Fredelig middelhavsliv på landsbygda i Alicante Oppdag en eksklusiv samling av nybyggede villaer i La Montañosa, et rolig boligområde nær den sjarmerende landsbyen Hondón de las Nieves. Dette innlandsområdet er kjent for sin tradisjonelle spanske atmosfære, vakre fjellandskap og avslappede livsstil, og tilbyr den perfekte balansen mellom ro og bekvemmelighet. Nyt en landlig setting omgitt av natur, samtidig som du bare er 30 km fra strendene på Costa Blanca og livlige kystbyer. Tilpassbare villaer i ett plan med moderne komfort Dette boligprosjektet tilbyr tilpassbare villaer designet i ett plan for maksimal komfort og enkel livsstil. Velg mellom forskjellige arkitektoniske stiler, inkludert ibicenco, moderne og middelhavsdesign, alle med 3 soverom og 2 bad, hvorav ett er en suite. Byggestørrelsen varierer mellom 100 og 125 kvadratmeter, med romslige åpne oppholdsrom, møblerte kjøkken, innebygde garderober og store vinduer som fyller hjemmet med naturlig lys. Hver villa er bygget på private tomter fra 400 kvadratmeter, noe som gir deg plass, privatliv og muligheten til å nyte friluftslivet i fredelige omgivelser. Den endelige prisen avhenger av villamodell, byggesystem og valgt tomt. Denne referanseprisen inkluderer en tomt til en verdi av 82 500 euro, med justeringer hvis en annen tomt velges. Uteområder designet for avslapning Nyt middelhavsstilen med private hager, et 6 x 3 meter stort svømmebasseng, en overbygd veranda og privat parkering på tomten. Alle tomter er inngjerdet, noe som gir privatliv og sikkerhet. Enten du ønsker å slappe av ved bassenget, nyte utsikten over fjellene eller underholde gjester, gir disse villaene en eksepsjonell utendørsopplevelse. Høy kvalitet og moderne funksjoner Hver villa leveres omtrent 12 måneder etter godkjenning av lisensen og er bygget etter høye standarder med førsteklasses funksjoner, inkludert: Pansret inngangsdør og motorisert port Motoriserte persienner i soverommene Fullt møblert kjøkken Fullt utstyrte bad med servantskap, speil og dusjvegger Forhåndsinstallert for sentral klimaanlegg Aerotermisk varmtvannssystem Ideell beliggenhet nær naturen og viktige attraksjoner Alicante lufthavn: 35 km Strendene på Costa Blanca: 30 km Alicante by og havn: 40 km Elche: 28 km Alenda Golf: 20 km Font del Llop Golf: 25 km Ditt nye middelhavshjem venter Nyt fred, privatliv og moderne livsstil i et av Alicantes vakreste boligområder. Kontakt oss i dag for å få mer informasjon eller avtale visning av disse fantastiske nybyggede villaene i Hondón de las Nieves.
Nybygde luksusvillaer med tomannsbolig i Benijófar, Costa Blanca Førsteklasses beliggenhet…
449,000€
NYBYGG BOLIG AV BUNGALOW LEILIGHETER I LOS BALCONES, TORREVIEJA Nybygget…
325,000€
Moderne middelhavsleiligheter i Ciudad Quesada, Costa Blanca Eksklusivt boligområde Oppdag…
314,000€
Alicante, Hondón de las Nieves
Owning a home is a keystone of wealth… both financial affluence and emotional security.
Suze Orman